20% Off House Plans Sitewide Ends Sunday
20% Off House Plans Sitewide Ends Sunday

House Plan: DFD-2581

See All 2 Photos > (photographs may reflect modified homes)
© copyright by designer
SQ FT
2,196
BEDS
4
BATHS
3.5
STORIES
2
CARS
2
HOUSE PLANS SALE 
START AT  $1,540.00
For questions and help, live chat, email or call us at 877-895-5299
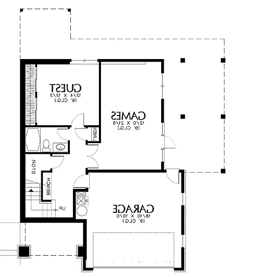
Floor Plans
Click to Zoom In on Floor Plan
 
House Plan 2581
House Plan Pricing
STEP 1 Select Your Package

PDF Single Build


Digital plans emailed to you in PDF format that allows for printing copies and sharing electronically with contractors, subs, decorators, and more. This package includes a license to build the home one time.

PDF Single Build $1,925
Most recommended package

5 Printed Sets + PDF


Digital plan emailed to you in PDF format that allows for printing copies on a home printer or local print shop and sharing with contractors, subs, decorators, and more. PLUS five printed sets shipped and delivered 3-5 business days.

5 Printed Sets + PDF $2,225
Digital plans plus 5 printed sets

CAD + PDF Single Build


CAD files are a complete set of construction drawings delivered electronically. They can be used for any type of modification—including major design changes and engineering—and include a release granting permission to modify the plan. Most CAD plan orders are emailed the same or next business day.
 
This package also comes with a PDF set of plans and a copyright release for making modifications and printing unlimited copies.
 
CAD files are provided in .dwg format. For details on the specific CAD program used, please refer to the PLAN DETAILS section located above the floor plan on each plan’s page.

CAD + PDF Single Build $3,850
2D electronic editable computer files
STEP 2 Need To Reverse This Plan?
STEP 3 CHOOSE YOUR FOUNDATION
STEP 4 OPTIONAL ADD-ONS
Subtotal:
$1925
FREE SHIPPING
 
Plan Details
See All Details
Finished Square Footage
1,158 Sq. Ft.
Main Level:
1,038 Sq. Ft.
Upper Level:
760 Sq. Ft.
Lower Level:
2,196 Sq. Ft.
Total:
Room Details
4
Bedrooms:
3
Full Baths:
1
Half Baths:
General House Information
2
Number of Stories:
40' 6"
Width:
42' 0"
Depth:
Single
Dwelling Number:
Unfinished Square Footage
397 Sq. Ft.
Garage:
GARAGE
Under
Garage Location:
2
Garage Size:
Exterior Style
Country
Craftsman
Traditional
Collections
Old House Classics
PDFs Fast!
Foundation
Crawlspace
Stem Wall Slab Foundation-Included
Framing Information
2x6
Exterior Wall Framing:
Roof Pitch
6/12
Primary:
4/12
Secondary:
Roof Load
25
Live:
15
Dead:
0
Wind:
Insulation (R)
21
Exterior Wall:
0
Interior Wall:
38
Ceiling:
25
Floor:
House And Ceiling Heights
10' 1"
First Floor Ceiling:
8' 1"
Second Floor Ceiling:
38' 0"
Maximum House Height:
Key Features
Attached
Basement
Crawlspace
Daylight Basement
Drive-under
Library/Media Rm
Slab
Suited for narrow lot
Suited for sloping lot
Walkout Basement

Our Guarantees

  • Only the highest quality plans
  • Int’l Residential Code Compliant
  • Full structural details on all plans
  • Best plan price guarantee
  • Free modification Estimates
  • Builder-ready construction drawings
  • Expert advice from leading designers
  •  PDFs NOW!™ plans in minutes
  • 100% satisfaction guarantee
  • Free Home Building Organizer