20% Off House Plans Sitewide Ends Sunday
20% Off House Plans Sitewide Ends Sunday

House Plan: DFD-3072

See All 36 Photos > (photographs may reflect modified homes)
© copyright by designer
SQ FT
3,345
BEDS
3
BATHS
3.5
STORIES
2
CARS
3
HOUSE PLANS SALE 
START AT  $1,596.00
For questions and help, live chat, email or call us at 877-895-5299
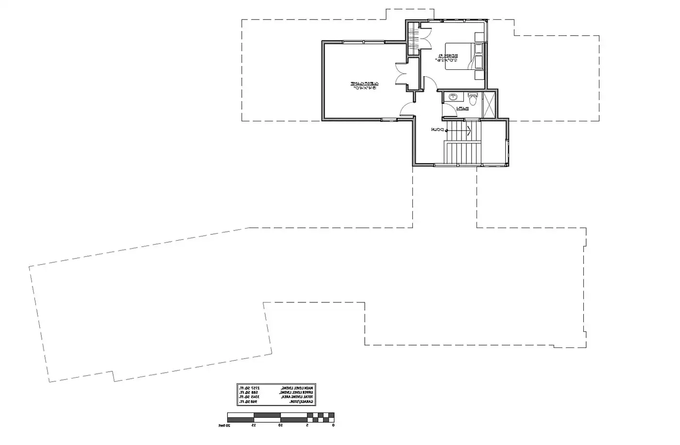
Floor Plans
Click to Zoom In on Floor Plan
 
About House Plan 3072:
Sleek lines give this three-bedroom contemporary house plan plenty of curb appeal. The home plan packs numerous features into its 3,345 square feet. The main living areas are nicely situated for gracious entertaining. Note the snack island, bar and fireplace. Expand any party to the breezy covered terrace. The family chef will appreciate the step-in pantry. Retire to the secluded master suite at day's end. A garden tub and a walk-in closet are highlights of the deluxe bath. Another bedroom suite is also on this level. A peaceful den could serve as a home office. A third bedroom and another bath are located on the second floor. A flexible room for guests or games could host hobbies or child's play. 
House Plan Pricing
STEP 1 Select Your Package

PDF Bid Set


Home plans stamped "NOT FOR CONSTRUCTION" for cost estimating and bidding purposes only; a minimum 5 set plan package must be purchased within 90 days for a license to build plan set; a credit will be applied towards your house plan upgrade

PDF Bid Set $1,095
Immediate Delivery!
Digital set of plans for bidding purposes only

PDF Single Build


Digital plans emailed to you in PDF format that allows for printing copies and sharing electronically with contractors, subs, decorators, and more. This package includes a license to build the home one time.

PDF Single Build $1,995
Immediate Delivery!
Most recommended package

5 Printed Sets


Five Printed Sets of Residential Construction Drawings are typically 24” x 36” documents and come with a license to construct a single residence shipped to a physical address. Keep in mind PDF Plan Packages are our most popular choice which allows you to print as many copies as you need and to electronically send files to your builder, subcontractors, etc.

5 Printed Sets $2,195
Five printed sets of house plans

8 Printed Sets


Eight Printed Sets of Construction Drawings, typically 24” x 36” documents, with a license to construct a single residence shipped to your physical address. PDF Plan Packages are our most popular choice which allows you to print as many copies as you need and to electronically send files to your builder, subcontractors, bank/mortgage reps, material stores, decorators and more.

8 Printed Sets $2,295
Eight printed sets of house plans

CAD + PDF Single Build


CAD files are a complete set of construction drawings delivered electronically. They can be used for any type of modification—including major design changes and engineering—and include a release granting permission to modify the plan. Most CAD plan orders are emailed the same or next business day.
 
This package also comes with a PDF set of plans and a copyright release for making modifications and printing unlimited copies.
 
CAD files are provided in .dwg format. For details on the specific CAD program used, please refer to the PLAN DETAILS section located above the floor plan on each plan’s page.

CAD + PDF Single Build $2,895
2D electronic editable computer files
STEP 2 Need To Reverse This Plan?
STEP 3 CHOOSE YOUR FOUNDATION
STEP 4 OPTIONAL ADD-ONS
Subtotal:
$1995
FREE SHIPPING
 
Plan Details
See All Details
Finished Square Footage
2,757 Sq. Ft.
Main Level:
588 Sq. Ft.
Upper Level:
3,345 Sq. Ft.
Total:
Room Details
3
Bedrooms:
3
Full Baths:
1
Half Baths:
General House Information
2
Number of Stories:
79' 3"
Width:
121' 6"
Depth:
Single
Dwelling Number:
Unfinished Square Footage
968 Sq. Ft.
Garage:
GARAGE
Side
Garage Location:
3
Garage Size:
Exterior Style
Contemporary
Lake
Mid-Century Modern
Modern
Collections
Builders
In-Law Suite
Kitchens
Luxury
Primary Suites
Mountain
Open Floor Plan
Outdoor Living
PDFs Fast!
Split Bedroom
Vacation
Foundation
Crawl Space
Framing Information
Combination
Roof Framing:
2x6
Exterior Wall Framing:
Roof Pitch
7
Primary:
Roof Load
25
Live:
20
Dead:
85
Wind:
Insulation (R)
21
Exterior Wall:
0
Interior Wall:
38
Ceiling:
30
Floor:
House And Ceiling Heights
9'6"
First Floor Ceiling:
24' 7"
Maximum House Height:
Key Features
Attached
Bonus Room
Courtyard
Covered Rear Porch
Crawlspace
Exercise Room
Family Room
Fireplace
Foyer
Inverted Living
Laundry 2nd Fl
Library/Media Rm
Loft / Balcony
Mud Room
Open Floor Plan
Rec Room
Side-entry
Storage Space
Suited for view lot
Vaulted Ceilings

Our Guarantees

  • Only the highest quality plans
  • Int’l Residential Code Compliant
  • Full structural details on all plans
  • Best plan price guarantee
  • Free modification Estimates
  • Builder-ready construction drawings
  • Expert advice from leading designers
  •  PDFs NOW!™ plans in minutes
  • 100% satisfaction guarantee
  • Free Home Building Organizer