20% off ALL House Plans Sitewide
20% off ALL House Plans Sitewide

House Plan: DFD-7268

See All 39 Photos > (photographs may reflect modified homes)
© copyright by designer
SQ FT
1,463
BEDS
3
BATHS
2
STORIES
1
CARS
2
HOUSE PLANS SALE 
START AT  $840.00
For questions and help, live chat, email or call us at 877-895-5299
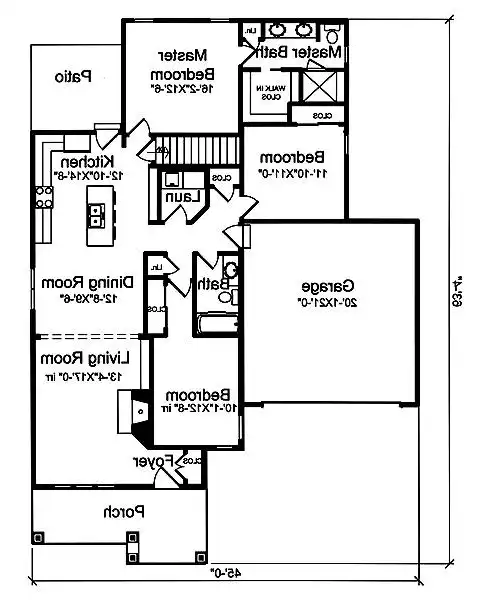
Floor Plans
Click to Zoom In on Floor Plan
 
About House Plan 7268:
Normally, a 1,463 square foot home would be considered small, but that is not the case with this ranch cottage. The stylish façade features many refined and unique finishes that you can’t find anywhere else. The highlights of this 3 bedroom 2 bathroom home are its spacious living room and fireplace, as well as a large kitchen island and outdoor patio. The master bathroom offers his and hers sinks as well as a good sized walk-in closet.  Additionally, the basement offers the potential for even more space with the foundation plan provides an unfinished basement and space for another bathroom. The beautiful stonework and covered front porch create an inviting atmosphere, begging for friends and family to come.
House Plan Pricing
STEP 1 Select Your Package

PDF Bid Set


Home plans stamped "NOT FOR CONSTRUCTION" for cost estimating and bidding purposes only; a minimum 5 set plan package must be purchased within 90 days for a license to build plan set; a credit will be applied towards your house plan upgrade

PDF Bid Set $870
Digital set of plans for bidding purposes only

PDF Single Build


Digital plans emailed to you in PDF format that allows for printing copies and sharing electronically with contractors, subs, decorators, and more. This package includes a license to build the home one time.

PDF Single Build $1,050
Immediate Delivery!
Most recommended package

5 Printed Sets + PDF


Digital plan emailed to you in PDF format that allows for printing copies on a home printer or local print shop and sharing with contractors, subs, decorators, and more. PLUS five printed sets shipped and delivered 3-5 business days.

5 Printed Sets + PDF $1,150
Immediate Delivery!
Digital plans plus 5 printed sets

8 Printed Sets + PDF


Digital plan emailed to you in PDF format that allows for printing copies on a home printer or local print shop and sharing with contractors, subs, decorators, and more. PLUS eight printed sets shipped and delivered 3-5 business days.

8 Printed Sets + PDF $1,180
Immediate Delivery!
Digital plans plus 8 printed sets

CAD + PDF Single Build


CAD files are a complete set of construction drawings delivered electronically. They can be used for any type of modification—including major design changes and engineering—and include a release granting permission to modify the plan. Most CAD plan orders are emailed the same or next business day.
 
This package also comes with a PDF set of plans and a copyright release for making modifications and printing unlimited copies.
 
CAD files are provided in .dwg format. For details on the specific CAD program used, please refer to the PLAN DETAILS section located above the floor plan on each plan’s page.

CAD + PDF Single Build $1,825
2D electronic editable computer files
STEP 2 Need To Reverse This Plan?
STEP 3 CHOOSE YOUR FOUNDATION
STEP 4 OPTIONAL ADD-ONS
Subtotal:
$1050
FREE SHIPPING
 
Plan Details
See All Details
Finished Square Footage
1,463 Sq. Ft.
Main Level:
1,463 Sq. Ft.
Total:
Room Details
3
Bedrooms:
2
Full Baths:
General House Information
1
Number of Stories:
45' 0"
Width:
63' 4"
Depth:
Single
Dwelling Number:
Unfinished Square Footage
425 Sq. Ft.
Garage:
153 Sq. Ft.
Porch:
102 Sq. Ft.
Patio:
GARAGE
Front
Garage Location:
2
Garage Size:
Exterior Style
Bungalow
Cottage
Craftsman
Ranch
Traditional
Collections
Affordable
Budget
Builders
First Home
Foundation
Basement Option
Slab Foundation
Walkout Basement Option
Framing Information
Truss
Roof Framing:
2x4
Exterior Wall Framing:
Roof Pitch
8:12
Primary:
8:12
Secondary:
8:12
Gable:
8:12
Porch:
Roof Load
30
Live:
17
Dead:
90
Wind:
Insulation (R)
15
Exterior Wall:
0
Interior Wall:
38
Ceiling:
0
Floor:
House And Ceiling Heights
9
First Floor Ceiling:
22' 0"
Maximum House Height:
Key Features
Attached
Basement
Country Kitchen
Covered Front Porch
Double Vanity Sink
Fireplace
Foyer
Front Porch
Front-entry
Kitchen Island
Laundry 1st Fl
Primary Bdrm Main Floor
Open Floor Plan
Slab
Suited for narrow lot
Walk-in Closet

Our Guarantees

  • Only the highest quality plans
  • Int’l Residential Code Compliant
  • Full structural details on all plans
  • Best plan price guarantee
  • Free modification Estimates
  • Builder-ready construction drawings
  • Expert advice from leading designers
  •  PDFs NOW!™ plans in minutes
  • 100% satisfaction guarantee
  • Free Home Building Organizer